Tanja Cekro

SERVICES

Services offered by Tanja Cekro

Regularization & compliance

Tanja assists you with administrative procedures to bring your property into compliance with urban planning regulations. She analyzes the situation, prepares all required documents, and follows up until final approval.

old 1 front

Interior transformations (partial mission)

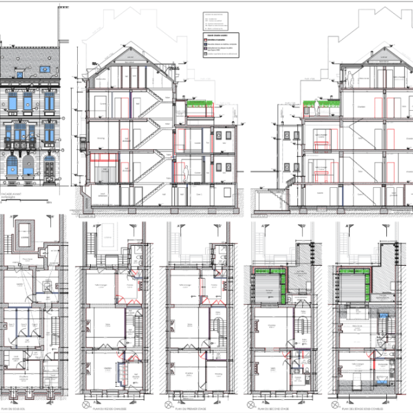
For renovations that do not impact the structural stability of the building (room layout, space optimization, etc.), she offers a tailored partial mission that includes study, planning, and support.

about

Change of use

Tanja advises and manages the procedures to transform a residential space into a commercial one, convert it into offices, or apply any other change of use. She evaluates feasibility and ensures full legal compliance.

 

image_2025-03-04_140530779

Full architectural mission

For larger-scale projects, she oversees the entire process: design, coordination with structural engineers, urban permits, and construction supervision. A complete service from concept to completion.