Tanja Cekro

Tarce

Archi

IMG-20251222-WA0021

À PROPOS

Architecte diplômée depuis 2011, Tanja a forgé son expertise au sein de divers cabinets d’architecture à taille humaine.

Elle vous accompagne désormais dans l’intégralité de vos projets, de l’obtention du permis de construire jusqu’à la réception de votre chantier. Elle intervient également pour des missions spécifiques, telles que la mise en conformité ou la régularisation de vos biens, et ce, sur l’ensemble du territoire belge (Bruxelles, Wallonie, Flandre).

Grâce à sa double expertise d’architecte et d’agent immobilier, Tanja vous offre un conseil stratégique à 360° pour optimiser la mise en vente ou la location de votre patrimoine immobilier.

SERVICES

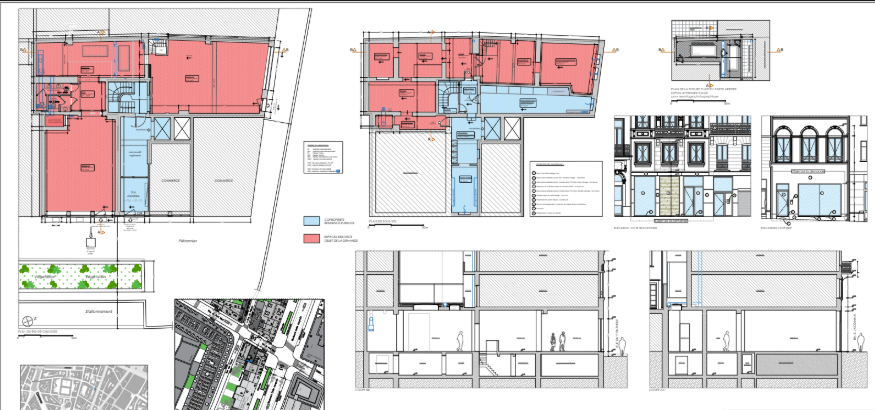
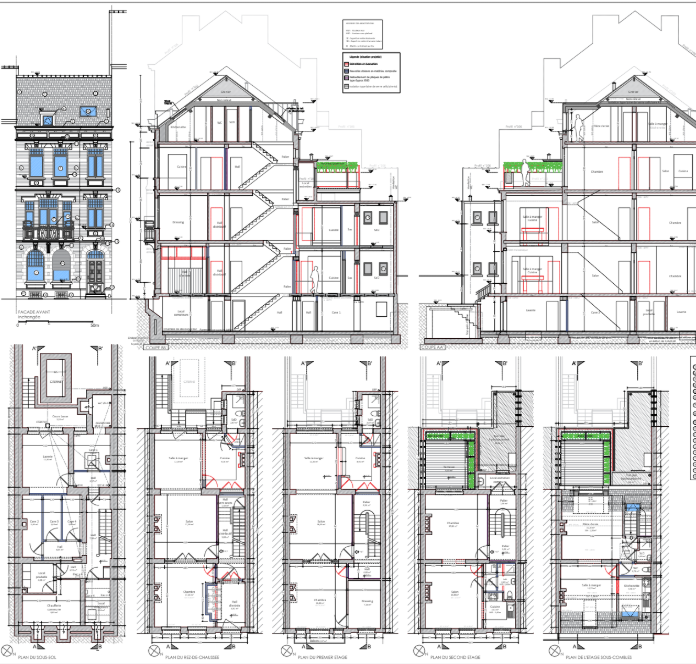
Bâtiment existant Résidentiel

 Je vous accompagne depuis la représentation graphique de votre bien, jusqu’au permis de construction avec l’étude de faisabilité à l’appui.

 

Bâtiment existant Commerce

Transformer un local en commerce, réaménager vos bureaux ou changer l’affectation d’un espace, je vous offre mes services pour tout permis de régularisation et de mise en conformité à l’égard de l’urbanisme de votre commune. Je vous oriente vers des entreprises qualifiées pour tout exploitation et sécurité des usagers.

Nouvelle construction

En zone urbaine ou rurale, le départ sera une feuille blanche et vos envies. Votre programme, une équipe d’accompagnement en vue de  concrétiser votre bâtisse.

 

Depuis l'esquisse à la réalisation

habitation

mes derniers

projets

RENFORCER LE LIEN

AU CŒUR DE VOTRE COMMUNAUTÉ

Basée à Louvain-la-Neuve, Tanja Cekro met son expertise en architecture et son statut d’agent immobilier au service des projets locaux. Que vous souhaitiez transformer un espace existant en lieu de convivialité, changer l’affectation d’un bâtiment (par exemple en petit commerce ou bureau de quartier) ou simplement mettre votre bien en conformité, elle vous accompagne de la faisabilité jusqu’à la réalisation, en veillant à respecter les spécificités de chaque contexte urbain ou rural.